1100 Sqft Plot for Sale in Ujjain Road, Indore

  • ₹44 Lac
Indore
Un-Furnished Sale
1100 Sqft Plot for Sale in Ujjain Road, Indore
Indore
  • ₹44 Lac

Overview

  • Residential
  • Property Type
  • Plot / Land
  • Property Subtype
  • TB-48256
  • Property ID

Details

Updated on April 25, 2026 at 6:30 pm
  • Property ID: TB-48256
  • Price: ₹44 Lac
  • Property Type: Residential
  • Property Status: Un-Furnished
  • Sales Agent Unique Id: SSM110
  • Length & Width: 1100 Sqft

Description

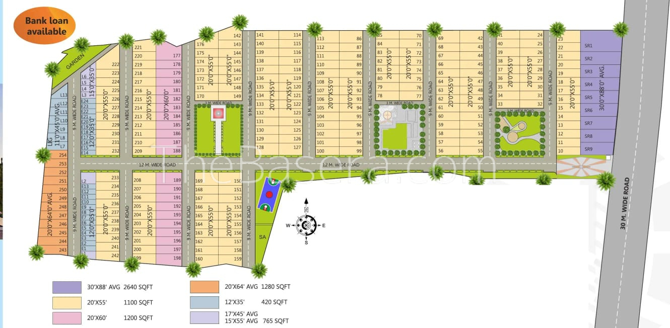
This well-located 1100 sqft residential plot is available for sale in the rapidly developing corridor of Ujjain Road, near Dharampuri. Spread across approx. 20×55 dimensions, the plot is ideal for building your dream home or for long-term investment.
* Prime location on fast-growing Ujjain Road
* Freehold property with clear title
* Ideal for residential home or investment
* Good road connectivity & upcoming infrastructure
* Peaceful surroundings with green environment
* Close to schools, hospitals & daily needs

More Properties by This Agent

Similar Listings

0 Review

Sort by:
Leave a Review

Leave a Review



×

Refer & Earn Guide

Invite friends and earn rewards when they purchase a package.

Earn 5% Reward

Example: ₹1000 Package → ₹50 Reward

How Refer & Earn Works:

Follow these steps to earn rewards:

1

Open Refer Page

Tap "Start Referring". After login, you will reach the Refer page where your referral link is available.

2

Share Your Referral Link

Copy your referral link from the Refer page and share it with friends.

3

Friend Purchases Package

Your friend purchases any package on the platform.

4

Both Get 5% Reward

You and your friend both receive 5% of the package value.

Compare listings

Compare
pra...
  • pra...